Содержание
Изготовление деревянных качелей своими руками
Самостоятельная сборка качелей для всей семьи — процесс трудоемкий, но при наличии сноровки и соблюдении установленной последовательности работ можно смастерить конструкцию своими руками и обустроить место отдыха с комфортом.
Стационарные деревянные качели для дачи
Рассмотрим последовательность сборки одноместной качели для сада простейшей конструкции. Она состоит из двух деревянных брусьев, закопанных вертикально в землю, соединенных в верхней части ригелем. К нему крепятся канаты сиденья. Для формирования каркаса понадобятся два деревянных бруса сечением 100×100 см и длиной 3 м — для стоек, а также еще один длиной не менее 1,5 м — для ригеля.
Работа выполняется в такой последовательности:
- Разметьте на площадке места под опорные стойки дачных качелей в соответствии с чертежом.
 - В выбранном месте выкопайте две ямы глубиной 1,2-1,5 м и диаметром 30-40 см. Для облегчения работы используйте ручной бур.
 - Насыпьте на дно ямы щебень слоем 20-50 см.
 - Участки брусьев в 1 м, которые будут под землей, покройте битумной мастикой и обмотайте рубероидом для защиты от влаги.
 - Соедините стойки верхней перекладиной.
 - Установите брусья в ямы.
 - Проконтролируйте, чтобы верхняя перекладина располагалась горизонтально. Залейте яму с брусьями раствором из цемента и песка в пропорции 1:3.
 - Отрежьте кусок доски длиной 60 см и тщательно обработайте ее поверхность.
 - По краям доски просверлите два отверстия.
 - Проденьте через них канат: в одну вошел, из другой — вышел.
 - Обмотайте ригель двумя концами каната.
 - Проконтролируйте расстояние от сиденья до земли и при необходимости измените его.
 - Покрасьте стойки.
 - После застывания бетона качелями можно пользоваться.
 
Переносные деревянные качели для дачи
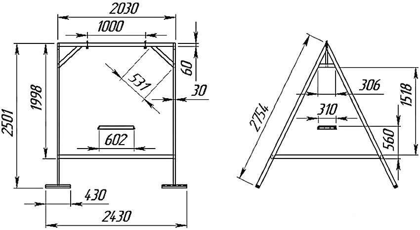
Чтобы продлить срок службы качелей, на зиму их прячут в сарай или другое закрытое место. В этом случае изготавливают конструкцию, у которой опоры не закапывают. Рассмотрим процесс изготовления переносной качели из дерева в форме буквы «А» с двумя горизонтальными распорками и такими размерами: ширина — 2,1 м, глубина — 1,235 м, высота — 2,2 м.
В таблице приведен комплект необходимых материалов для изготовления переносных деревянных качелей:
| Элемент качели | Сечение брусьев, мм | Длина брусьев, м | Количество, шт. | 
| Каркас | |||
| Ригель | 150х45 | 2,1 | 1 | 
| Стойка | 150х45 | 2,775 | 4 | 
| Нижняя распорка | 150х45 | 0,99 | 2 | 
| Верхняя распорка | 150х45 | 0,32 | 2 | 
| Сидение и спинка | |||
| Задняя перекладина | 70х35 | 0,6 | 2 | 
| Брусок нижний | 70х35 | 1,3 | 2 | 
| Стойка подлокотника | 70х35 | 0,275 | 2 | 
| Подлокотник | 70х35 | 0,6 | 2 | 
| Планка сидения | 70х25 | 1,3 | 8 | 
| Планка спинки | 70х25 | 1,3 | 2 | 
| Верхняя планка | 90х25 | 1,3 | 1 | 
| Рым-болт | 100 | 6 | |
| Цепь | 8 | 8,4 | 1 | 
Работы по сборке качели из дерева для дачи выполняйте в такой последовательности:
- Соедините стойки 150х45 мм одной стороной, чтобы получился угол 40-45°. Чтобы повысить надежность, брусья в месте соединения покройте клеем и стяните болтовыми соединениями. Такая фиксация надежнее, чем соединение саморезами.
 - Боковые стойки в каждой паре посередине и внизу соедините перекладиной для повышения жесткости.
 - Угловые части стоек соедините ригелем. К нему будет крепиться сиденье.
 - Установите конструкцию вертикально на жесткое основание.
 - Из планок сечением 70х35 мм сбейте каркас сидения размером 130х60 см, а из планок 70х25 мм — каркас спинки размером 130х60 см.
 - Заполните рамки планками.
 - Из тех же реек сделайте подлокотники и закрепите их к сиденью саморезами или другим способом.
 - Закрепите спинку к каркасу посадочного места и подлокотникам саморезами.
 - По краям сиденья и спинки прикрутите рым-болты (по 2 на каждую сторону).
 - В перекладине просверлите 2 отверстия и закрепите в них рым-болты.
 - Прикрепите цепь соответствующей длины к рым-болтам карабинами.
 - Из брусков 20×30 или 30×40 мм сбейте каркас навеса и закрепите его к верхней поперечной балке под углом 10-20°.
 - Покрасьте деревянные детали.
 
Осталось только натянуть на каркас полотно. Лучшим материалом для навеса считается полиэстер или сетчатый полиэтилен. Последний дешевле, но срок службы полиэстера достигает 10 лет. К тому же он отталкивает грязь, поэтому не требует стирки. Качели с навесом подобной конструкции на зиму рекомендуется прятать в защищенное от непогоды место.
Более практичной считается двускатная крыша с битумной черепицей, которая не боится непогоды. Для ее создания сформируйте стропильную систему из деревянных брусков, которая обеспечит наклон навеса 10-20°, и закрепите ее к верхней поперечной балке. Сделайте обрешетку на стропильной системе и уложите на нее битумную черепицу.
Общие рекомендации
Для долговечности затраченных усилий надо обрабатывать используемые материалы.
Дерево от влаги, вредных насекомых, гнили, плесени помогут защитить антисептики и специальные пропитки. Обработку лучше производить перед сборкой конструкции.
После монтажа лежака деревянные части следует покрыть грунтовкой, олифой, лаком или краской. Так вы продлите срок службы вашего шедевра.
Ткани так же стоит защищать от дождей и солнца. Сохранить их яркость и службу помогут водоотталкивающие пропитки. Их действие длится 2-4 недели.
Ну и, конечно, помните при работе известную русскую поговорку. Измеряйте семь раз, отрезайте один.
Чертежи с размерами и схемы деревянных садовых качелей
Ниже представлено несколько схем с более или менее подробных объяснений по изготовлению качелей для дачи из дерева.

Здесь представлен вариант с жесткой конструкцией в виде треугольной трапеции, к которой сидение из планок прикреплено цепями на карабинах. Имеется также навес из легкой ткани на проволочном каркасе.
Основа изделия – брус с сечением от 30х40 мм до 100х100 мм. Больший размер используется для стоек и поперечин, меньший – для основы сидения.
Качели из бруса 100х100 мм или даже 150х150 мм легко соорудить, если при строительстве брусового дома остались невостребованные куски пиломатериалов.
Интересна модификация П-образной конструкции с раскосами снизу.

Подвесить на такую опору можно сидение любого типа – от простейшей доски, показанной на изображении, до нарядной скамейки со спинкой.

Если время и возможности совсем ограничены, допустимо обойтись двумя столбами с перекладиной, но основания столбов придется бетонировать – в противном случае должной устойчивости постройка иметь не будет. Кстати, в этом эскизе уличных качелей из бруса предусмотрена интересная деталь – крышка для доски, в которой закреплены крюки для подвесов. Это предохранит металлические детали от ржавчины.

Кстати, если сидение делать лень или не из чего, можно использовать проверенный путь – собрать их из паллет. Такие качели из поддонов своими руками делаются элементарно и могут быть любого размера – от небольшого сидения до полноценной подвесной кровати, как показано на фото.

Если же время, мастерство и материалы присутствуют в должном количества, можно немного помудрить и сделать:
- перголу с качелями для дачи из дерева;
 - беседку с подвесными креслами или диванами;
 - роскошные креативные дачные качели на основе не спиленных деревьев с навесом;
 - оригинальные качели для сада, рассчитанные на целую компанию;
 - даже целый «качельный комплекс».
 
Переносное кресло-шезлонг
Прочное, легонькое кресло быстро собирается и разбирается. Его удобно брать с собой на природу. Модель настолько простая в изготовлении, что подходит даже начинающим мастерам.

Разборный стул состоит из 2-х деталей:
- спинки, обтянутой плотной, износостойкой тканью;
 - деревянного сиденья.
 
Для создания кресла рекомендуется взять доски из вишни для верхних перемычек и сиденья, а также клен для ножек и несущих деталей. Можно использовать и дерево сосны.
Помимо инструментов используются следующие материалы:
- 2 ножки для спинки размером 20х40х800мм;
 - 2 ножки для сиденья — 20х40х560мм;
 - 2 нижние перекладины — 10х50х380мм;
 - 1 верхняя перекладина — 10х40х380мм;
 - 1 перекладина для сиденья — 20х40х300мм;
 - 5 реек- 20х40х400мм;
 - отрез материи- 600х500мм.
 
Порядок сборки переносного шезлонга изображен на схеме.

Сначала соединяются детали при помощи саморезов и шуруповерта.
Заготовка обрабатывается и покрывается лаком.
Пока сохнет каркас, подворачивается и прошивается ткань. Затем прибивается с помощью скобок и строительного степлера к деревянной заготовке.
Соединяем спинку и сидение шезлонга.
Наслаждаемся отдыхом в новеньком креслице.
Обратите внимание на ещё одну интересную модель шезлонга в видео
Технология производства
В первую очередь нужно определиться, какие качели устанавливать на участке. Подвесные качели в основном рассчитаны на детский возраст. Если есть сидение со спинкой и подлокотниками, они подходят для детей от 2 лет. Каркасные качели подходят и для детей, и для взрослых
Перед тем как приступать к работе, необходимо обратить внимание на следующие моменты:
- создать чертежи;
 - подготовить материалы и инструменты;
 - изготовить элементы и собрать конструкцию.
 
Чертеж – это важная часть работы. Можно взять любой готовый чертеж, который подходит по типу и при необходимости изменить размеры. При самостоятельной подготовке чертежа всей конструкции и отдельных деталей нужно учесть следующее:
- от формы основы зависит устойчивость конструкции – самыми устойчивыми по форме считаются основы А-образной и Л-образной форм; опора из 2 столбов по бокам допускается, если их диаметр более 20 см и они будут вкопаны минимум на 40 см, а сами качели рассчитываются на 1 ребенка;
 - высота спинки – 40–60 см;
 - глубина сидения – 40 см или более;
 - длина цепей или каната от сидения до места крепления – 90–120 см, но возможны индивидуальные размеры.
 
После создания чертежа нужно определиться с породой дерева. Самым подходящим вариантом является лиственница или сосна. Для работы потребуются такие материалы и инструменты, как:
- бревна и доски;
 - дрель и сверла;
 - пила (бензопила);
 - электроножовка, лобзик, шуруповерт (отвертка);
 - рым-болты, металлические винты с кольцом, карабины, саморезы;
 - молоток, рубанок;
 - рулетка, карандаш, угольник, уровень;
 - цепь или канат.
 
Для подвесных качелей нужно сделать только сидение и подвесить его к опоре (веткам дерева). Для сидения потребуется половина бревна или доска нужной длины, а также можно сделать сидение со спинкой, которое нужно закрепить на 4 каната или цепи.
Каркасные
Каркасные качели делают в такие этапы, как:
- изготовление сидения и каркаса;
 - сбор конструкции;
 - покрытие антисептиком и лаком.
 
Для их изготовления потребуются следующие материалы:
- брусья 3х5 м для основы лавки;
 - брусья 8х8 м для каркаса;
 - доски толщиной 2 см.
 
Брусья разрезать на равные отрезки (примерно 40–60 см). Соединить попарно таким образом, чтобы угол между 2 отрезками был 100–1100 градусов. Для скрепления использовать болты, соединения рекомендуется укрепить столярным клеем. После полного высыхания клея к основе саморезами прикрепить доски по всей длине или только на сидение и спинке. Болтами прикрепить цепь или канат к основе в 4 местах: сверху на спинке и снизу на сидение. На другом конце каната прикрепить карабин, который затем закрепляется к каркасу на рым-болт.
Для изготовления каркаса 2 бревна скрепляются в форме буквы Л (угол 37 градусов). Для большей устойчивости бревна рекомендуется вкопать на 20–30 см и соединить доской, в результате должна получиться буква А. Всего таких элементов нужно 2. Установить их на расстоянии примерно 1,5 метра между собой. Сверху прикрепить бревно или доску 15х5 см, на которую вкрутить рым-болты для цепи. Для дополнительной прочности с задней стороны снизу также крепится доска. После того как конструкция полностью установлена, можно приступать к покрытию антисептиком и лаком.
Из деревянных поддонов
Этот вид довольно популярный среди любителей оригинальных идей. Для изготовления подходят любые поддоны: европейские, финские или американские. Крепкими и одновременно самыми тяжелыми являются американские варианты размером 1200х1200 мм. Рекомендуется выбирать финские 1200х1000 мм. Лучше всего использовать новые поддоны, но вполне сгодятся и использованные, которые предварительно нужно отремонтировать. Выбирая поддон, учитывайте жесткость – доски не должны прогибаться под тяжестью, иначе они могут сломаться в процессе использования.
Для изготовления нужно разрезать поддон и сбить 2 части в виде дивана. Если планируются широкие качели из 2 поддонов, нужно прибить снизу бревна, на которые будет приходиться основной вес. Далее, сделать подлокотники из брусьев: прибить к лавке по 2 бруска по сторонам и сверху закрепить доску, на которую прикрепить рым-болты. Сделать каркас из бревен и прикрепить качели из поддонов с помощью рым-болтов и карабинов.
Материалы, из которых изготавливаются качели
- Деревянные. Такие качели уже давно завоевали сердца многих дачников, что совсем неудивительно. Благодаря тому, что дерево является экологическим материалом, оно полностью безопасно для здоровья. Кроме этого, дерево отлично гармонирует с участком;
 - Кованная сталь. Качели, созданные из кованой стали, являются настоящим произведением искусства. Их отличительной чертой является надежность, прочность и долгий срок эксплуатации. Естественно, этим моделям присущи свои недостатки. Например, учитывая большой вес конструкции, убрать или передвинуть качели будет довольно сложно.
 

Зачем нужны навесы
Большинство садовых качелей оснащены различными крышами; такое дополнение дает возможность решить несколько задач:
- Защита от коррозии. Антикоррозийное покрытие, защищающее металлические детали, со временем утрачивает свою целостность. Под действием влаги на поверхности металла запускается процесс коррозии. Качественный навес поможет надолго сохранить любимое место отдыха в надлежащем состоянии.
 - Защита от мусора. Навес защитит вас от всех сюрпризов — веток, листьев и невоспитанных птиц. После проведенного на природе вечера вам не придется вытряхивать мусор из волос, отстирывать вещи и чехлы подушек.
 

 Переносная модель на металлическом каркасе Источник tehnika-sech.ru
- Защита от ультрафиолета. Солнечный свет способен оказывать разрушительное воздействие на конструкцию: краска начинает шелушиться и отслаиваться, цвет выгорает. Установка навеса предотвращает порчу материалов.
 - Защита от перегрева. В жаркий летний день отдыхать под навесом гораздо комфортнее. Даже в полдень вы можете сидеть на качелях, сколько вздумается, без риска получить тепловой удар.
 
Чем можно порадовать детей?
Для начала можно построить детские качели. Для возведения П-образной конструкции необходимо только 3 бревна сечением 100 мм. 2 бревна вкапывают в грунт вертикально. Третье — перекладина. В качестве перемычки может выступать и стальная труба диаметром от 76 мм и более. Чтобы перекладина плотно лежала на столбах, в их торцах делают выемки в соответствии с сечением перемычки.
Бревна обрабатывают антисептическим составом и покрывают краской или лаком. Части, которые будут вкопаны в грунт, должны быть обмазаны битумной мастикой. Чтобы обеспечить устойчивость конструкции, столбы должны быть углублены в почву на 1/3 длины. В выкопанных для бревен ямах нужно сделать подсыпку толщиной 15 см из песка, щебня или ПГС. Столбы погружают в ямы после утрамбовки подсыпки. В вертикальном положении стойки фиксируют, закладывая в ямы камни. Затем следует залить бетон.
Друг с другом бревна можно стягивать строительными скобами или использовать резьбовой крепеж соответствующей длины. Сиденье качелей лучше подвесить, пропустив веревки через сквозные отверстия, сделанные в перекладине. Крепление веревок или цепей будет надежнее, если его расположить над перемычкой. К стальной перекладине петли или крючки для подвешивания сиденья можно приварить.
Необходимо сказать, что использовать трос вместо веревки нельзя: даже слегка распустившийся, он становится травмоопасным. Не рекомендуется делать и массивное сиденье. Лучше изготовить его из легкой древесины. Можно сварить каркас сиденья из тонких стальных труб (рис. 1), но не стоит делать его из листовой стали.
Как видно из схемы (рис. 2), качели становятся устойчивее: они способны выдерживать более высокие нагрузки, так как их столбы оснащены дополнительными упорами.
Недостатком описанных выше конструкций является их стационарность. Но получится ли сделать качели своими руками так, чтобы их можно было при необходимости переместить, а само сооружение не теряло бы устойчивости? Если руководствоваться следующей схемой (рис. 3), то можно соорудить конструкцию, отвечающую перечисленным требованиям.
Раму качелей можно собрать из бревен, бруса и стальных труб. Конструкцию следует устанавливать на выровненной площадке. В нижних перекладинах можно сделать сквозные отверстия. Через них для улучшения устойчивости качелей в грунт вбивают колья.
Преимущества деревянных качелей
- простота монтажа. Для того чтобы произвести монтаж деревянных качелей, от вас не потребуется специальных знаний. Требуется наличие лишь основных навыков обработки древесины и немного терпения;
 - ценовая доступность. Как правило, качели из кованого металла являются очень дорогим удовольствием, из-за чего не каждый дачник может себе их позволить. Деревянные модели, наоборот, являются доступными и обойдутся вам гораздо дешевле;
 - универсальность. Качели из древесины подойдут для детей любого возраста, в то время как стальные модели для малышей, не достигших четырех лет, могут быть попросту опасны;
 - гармоничность. Деревянная конструкция отлично впишется в ваш дачный участок и не будет выбиваться из общего вида.
 
Выбор места для качелей
После изготовления чертежа качелей для дачи следует изучить схему участка и определиться с расположением конструкции на нем.
При выборе места установки придерживайтесь таких рекомендаций:
- Площадка должна быть ровной, просторной и открытой.
 - На расстоянии 2,5 м от качели не должно быть никаких препятствий.
 - Во время раскачивания ветки деревьев не должны касаться человека.
 - Выбирайте участок под навесом или в тени, чтобы обеспечить комфортный отдых в солнечный день.
 - Качели на веранде будут защищены от солнца и дождя.
 - Не устанавливайте конструкцию возле фонтанов, дорожек, газонов и цветника.
 - Удачным вариантом размещения качели считается место с красивым видом на сад, водоем и т.д.
 - Правильно выбранная территория добавит оригинальности всему участку.
 
Эксклюзивная установка
Весьма эффектно выглядят садовые качели изготовленные своими руками из дерева, в которых роль сидения выполняют старые автомобильные покрышки или брёвна необычной формы.
Изготовить подобные сидения проще-простого.
- В покрышке высверливается необходимое количество отверстий.
 - Для обеспечивания надежного крепления подвесов вставляются специальные болты.
 - Вся установка подвешивается на дерево или заранее подготовленную перекладину.
 
Устройство готово к эксплуатации!
Во время прогулок по ближайшему к дачному участку лесу, не проходите мимо бревна или коряги необычной формы. Сама текстура дерева подскажет какое сказочное существо можно сделать из раздобытого материала. Ну, а радости ребенка, оседлавшего фантастическое животное не будет предела!
Изготовление качели из металла для дачи

Чтобы сделать качели из металла своими руками для дачи, берут уголок, круглые трубы или тавры. Мастера предпочитают профильную трубу, как прочный и надежный материал.


Применяют:
- профиль квадратный или прямоугольный для стоек, распорок;
 - овальный для гнутых элементов;
 - плоский – для вспомогательных деталей.
 
По фиксации различают стационарные и переносные изделия. В первом случае устройства ставят на бетонированные стойки, во втором – опоры крепят к раме, заглубленной в грунт. Переносные железные качели удобны, если на зиму их убирают в дом.
Конструкцию выбирают в виде букв «А», «П», для переносных изделий применяют Л-образные опоры. Сиденья подвешивают на хомуты, анкерные болты или шариковые подшипники. Детали для навешивания проверяют на прочность, смазывают.
Необходимый инструмент и расходные материалы
Чтобы соорудить металлические уличные качели для дачи своими руками, пригодятся:
- сварочный аппарат;
 - электроды 2,6 мм;
 - профильные трубы шириной стенки 40-70 мм, толщиной 1-2 мм для сооружения стоек, перекладины;
 - брус деревянный для лавочки 30х30 мм (сечение может быть больше или меньше);
 - тросы, цепи;
 - 6 рым-болтов с шайбами, гайками для фиксации;
 - краска, лак.
 
Чертежи качелей из металла
Продумывая, как сделать сварные качели, исходят из параметров ширины одного посадочного места – не менее 0,5 м на человека. Высота на выбор хозяина, а между опорами и скамейкой оставляют расстояние в 35 см для веревочного крепления, 25 см для цепного.
Простой чертеж выглядит так:

Пошаговая инструкция по сборке
Как сделать сварную конструкцию А-образной формы:
- Нарезают 4 трубы по 2,5 м для стоек. Перекладины делают по 2,1 м.
 - Обрезают края трубы под углом в 30 градусов, сваривают попарно в форме равнобедренного треугольника.
 - Откладывают от вершины 2 м, приваривают горизонтальную перемычку длиной в 1,038 м.
 - К вершинам стоек, разведенных на 2 м, приваривают горизонтальную перекладину так, чтобы концы выступали с обеих сторон на 5 см.
 - Нарезают брус для скамейки, ошкуривают, лакируют, сушат.
 - Деревянный брус крепят к каркасу сиденья. Фиксация на болты с шагом от 2 см.
 - Сиденье навешивают на перекладину. Крепят на рым-болты, предварительно просверлив в перекладине отверстия.
 

Чтобы поставить взрослые или детские качели для дачи своими руками, делают так:
- роют 4 ямы глубиной до 50 см;
 - делают бетонную смесь из готового порошка или цемента, воды, песка (1:2:3);
 - на дно ям насыпают песок слоем до 10 см;
 - ставят опоры;
 - пространство между опорами и грунтом засыпают камнями и заливают бетоном;
 - дают бетону высохнуть минимум 3-4 дня.
 
После просушки раствора конструкцию тестируют, окрашивают.
Изготовление навеса для летней качели
Полог или навес защитит от солнца, дождя. Самый простой вариант – натянуть на конструкцию тканый материал в виде маркизы. Такие применяют, устанавливая диван качели для дачи. Рейки держат плотную ткань, не давая ей сместиться.
Второй вариант – лист поликарбоната с фиксацией на металлопрофиль. Форму определяют боковые части навеса – классическая в виде пирамиды или полукруглая. Для второго вариант профиль гнут трубогибом.
Для сооружения навеса поперечные планки профиля фиксируют к основным балкам сваркой или болтами. Затем на деревянную раму натягивают полотно, фиксируют лист поликарбоната (на прессшайбы, болты). В конструкции верху качелей делают отверстия, фиксируют навес.
Базовые требования
Прежде чем приступить к работе, необходимо ознакомиться с рядом требований, соблюдение которых позволит создать качественный продукт. Поскольку качели садовые считаются довольно травмоопасными, необходимо как следует позаботиться о том, чтобы никакие курьезные ситуации не омрачили отдых. Все элементы должны быть надежными. А во время эксплуатации нельзя, чтобы рядом находились предметы, способные стать преградой для максимального хода качелей.
Как правило, качаться любят дети. Но порой и взрослые не прочь отдохнуть после тяжелых трудовых будней. Решая вопрос, как сделать качели, обязательно следует предусмотреть высокую грузоподъемность и максимальную динамическую нагрузку. Наличие прочного каркаса для качелей является важным условием безопасности.
В зависимости от того, где будут установлены качели, выбирается, из чего их делать. Чаще всего они используются на даче в саду, на открытом воздухе. Стройматериалы, соответственно, должны обладать устойчивыми к атмосферным явлениям характеристиками. Тогда они прослужат долго. Не следует забывать и о внешнем виде. Для того чтобы придать сделанным своими руками садовым качелям аккуратный вид, нужно выбирать материалы, за которыми легко ухаживать.
Проанализировав все требования и определившись с параметрами, можно выбирать тип изделия. По способу установки выделяют:
- Мобильные. Если точного места для их монтажа не существует, то лучше остановить свой выбор на переносной модели на дачу. Тогда качели можно будет переставлять в любое удобное место.
 - Стационарные. При создании качелей своими руками место установки определяется один раз, оно остается неизменным на протяжении всего срока эксплуатации.
 
По принципу устройства различают:
- Подвесные. Сиденье крепится к раме посредством подвесов.
 - Каркасные. Характеризуются цельным каркасом, сваренным из труб либо сделанным из деревянных балок.
 
Что же касается стройматериалов, то наиболее популярными являются садовые качели своими руками из металла, дерева либо их комбинирования. Все вышеперечисленные конструкции соответствуют требованиям в той или иной степени. Однако если на первое место ставить безопасность, то лучшим вариантом станут стационарные каркасные качели из металла. Они по отношению к другим вариантам обладают большей устойчивостью и грузоподъемностью.
Мобильные
Стационарные
Подвесные
Каркасные
Виды качелей
Конечно же для любимого ребенка или внука можно приобрести готовое изделие, тем более, что торговые сети предлагают самые разнообразные, качественные и удобные модели. Но, как все изготовленное профессионалами, подобные конструкции стоят слишком дорого.
Не каждый может позволить приобрести дорогую вещь. Выходом из данной ситуации может послужить изготовление качелей для детей своими руками.
Среди разновидностей аттракционов, которые можно изготовить в домашних условиях, наиболее популярными являются:
- комбинированные;
 - раскладывающие;
 - качалки-беседки;
 - конструкции, вмещающие всех членов семьи.
 
Подробный инструктаж и мастер-классы по изготовлению популярного аттракциона нетрудно найти на просторах интернета и сайтах мастеров-самоделкинов.
Какие бывают качели?
Мягкое кресло-качели Прежде чем строить качели, стоит подумать об их назначении (катание детей либо взрослых), местоположении (чрезмерно габаритные модели неуместны на маленьких участках), сезонности (не на всех дачах уместно оставлять качели на зиму под открытым небом)
Также важно выбрать модель, которая хорошо впишется в общую картину дачного ландшафта

 Деревянные качели балансиры
Качели могут быть мобильными (разборными) и стационарными.
В свою очередь мобильные качели могут быть подвесными или оснащенными сборным каркасом, который устанавливается на земле.
Самостоятельно можно изготовить качели-балансир, качели-гамак, качели-диван. Особого внимания заслуживают конструкции, далекие от классического представления конструкции качелей. Необычные качели могут быть:
- в форме чипсины;
Качели — чипсина
 - в виде подвешенного на Г-образной стойке овального кресла;
Качели настойке
 - в виде лодочек, ракет, лебедей и т.д.;
Качели-ракета
 - с сиденьем из обруча или кованых элементов.
Металлические качели
 
И совсем недавно появились качели для детей-инвалидов. Конструкция с платформой для инвалидной коляски позволяет кататься даже тем, кто, к сожалению, не может передвигаться самостоятельно.

 Качели для инвалидов

 Качели для детей с ограниченными физическими возможностями
Выбираем модель и место установки
Перед тем, как приступить к созданию схемы конструкции, нужно решить, для кого вы делаете качели и где их установите. Уже после этого можно готовить чертёж и подбирать материалы с необходимыми инструментами.
Существует очень много видов и моделей садовых качелей, но условно их можно разбить на три типа.
- Качели для всей семьи – обычно массивное сооружение. Часто выглядит как скамейка с высокой спинкой, на которой могут уместиться несколько человек. Такая конструкция подвешивается к прочной и устойчивой П-образной раме на цепи. Можно установить небольшой навес на поперечной балке, чтобы качели можно было использовать как в жаркую, так и дождливую погоду.
 - Детские качели. Ассортимент моделей очень большой: изделия из сидения и подвески, крепкие каркасные сооружения с сидением-креслом, крупные конструкции-лодочки. Модели с каркасом считаются более безопасными. Если ваш ребёнок ещё очень мал, обязательно предусмотрите на сидении ремни фиксации.
 - Переносные качели. Преимущество таких моделей – в их мобильности. Их можно подвесить куда угодно: в доме, в беседке, на толстую ветку дерева, на веранде, на установленной перекладине, и в любое время перевесить в другое место.
 
Постарайтесь выбрать удобное место для качелей
У каждого из этих типов качелей есть свои преимущества, и любой из них заслуживает, чтобы мы рассмотрели его подробнее. Но для начала нам нужно подготовить всё необходимое.
Особенности изготовления садовых качелей
Рассмотрим процесс создания простейших качелей. В первую очередь надо определиться с планом работ и подготовить чертеж. Его можно сделать самостоятельно или найти готовые варианты в интернете. Второй вариант является предпочтительным, так как вы сможете увидеть не только чертежи, но и фото садовых качелей, сделанных по ним.
Итак, нам понадобится четыре деревянных бруса 10 x 10 сантиметров. Их длина не должна превышать трех метров. Создаем пару Л-образных конструкций, которые объединяются под углом в пятьдесят градусов. Для крепления подойдут обычные мебельные болты.
Отсчитываем от низа опоры шестьдесят сантиметров и условно разделяем её на три равные части. На стыке 1 и 2 устанавливаем затяжки. Всё закрепляем посредством болтов.
Затем объединяем готовые рамы. Для этого подойдет деревянная перекладина (10 x 10 сантиметров). Закапываем опоры на глубину восьмидесяти сантиметров. Примерно 10 сантиметров отводится на присыпку из песка и камня. Затем заливаем ямы раствором. Устанавливаем конструкцию по уровню, чтобы убедиться в том, что все расположено ровно и без перекосов.
Создаем пару деревянных рамок (2 x 0.5 метров для сиденья и 2 x 0.65 метров для спинки). Они объединяются под углом 130 градусов. Внизу по всему периметру конструкция закрепляется при помощи металлической полоски.
Рассмотренный вариант не является единственно возможным. Находите в интернете фото самодельных качелей для сада, ищите чертежи и экспериментируйте.
Общее описание качелей-скамьи изготовленных своими руками
Качели в виде лавочки относят к моделям семейного типа. Они бывают с подлокотниками или без, на жесткое сидение часто кладут матрасы или подушки. Также, качели-скамейка собранные своими руками для дачи, оборудуют навесом, от этого они становятся по-домашнему уютными и укрывают от прямых солнечных лучей.
Все модели скамейки-качалки состоят из:
- опоры из бруса или металлических труб;
 - сиденья собранного из досок или небольших брусков, со спинкой, подлокотниками или без них;
 - подвесы — цепи, полипропиленовые канаты, веревки;
 - элементы крепления.
 
Если предполагается навес, то его собирают из легкого прочного кровельного материала.
Все элементы из дерева крепятся болтами, саморезами, можно с дополнительной проклейкой стыков. В некоторых случаях применяют скобы, уголки.
Материалы и инструменты для качелей-скамейки из дерева
Мы предлагаем вам построить такие качели, на которых можно разместить нескольких детей. Вы можете отойти от используемых нами размеров, расширить или сузить сидение, сделать спинку больше или меньше.
Такие качели понравятся не только детям, но и взрослым, их можно установить как в саду, так и в зоне отдыха.

Дерево – самый распространённый материал для строительства качелей
Если на вашей даче недавно шло строительство, то наверняка остались подходящие материалы, а инструмент будет под рукой. Качели будем делать из древесины – она одновременно проста в обработке и достаточно прочна. По характеристикам и стоимости хорошо подойдут сосна, ель и берёза.
Вам понадобятся:
- 15 сосновых досок 2500 мм длиной, 100 мм Х 25 мм%
 - 1 доска 2500 мм длиной, 150 мм Х 50 мм;
 - 30-40 саморезов 80 Х 4,5;
 - 200 саморезов 51 Х 3,5;
 - 6 карабинов;
 - сварная цепь 5 мм – по высоте качелей;
 - 4 оцинкованных винта с кольцами (пара 12 Х 100 и пара 12 Х 80).
 
Из инструментов вам понадобятся карандаш, угольник и рулетка для замеров, а так же молоток, рубанок, ножовка, циркулярная пила и дрель с несколькими свёрлами.
А теперь приступим к изготовлению качели-скамейки своими руками.
 





