Содержание
Строим классический вариант стула-стремянки
Для того чтобы сделать стул стремянку трансформер своими руками точно по чертежам, потребуется минимальный комплект электроинструментов:
- Электролобзик с комплектом пил по дереву;
- Ручной электрофрезер с концевыми фрезами на 25 мм и 30 мм;
- Сверлильный станок или дрель с приспособлением для точной вертикальной сверловки;
- Полировальный аппарат с насадкой по дереву;
- Шуруповерт;
- Комплект столярных струбцин.
Так как данная конструкция, кроме функций лестницы, будет также использоваться в качестве предмета мебели, лучше всего подобрать схему с элементами резьбы и декора.
В большей части стулом-стремянкой будут пользоваться, как предметом мебели, поэтому имеет смысл сделать его максимально красивым и привлекательным. В данном случае декоративные элементы практически не используются, на боковинах выполняются окна – выборки, для того чтобы сделать конструкцию легче и придать ей более изящный вид.
Конструктивно каждая часть стула-стремянки состоит из двух боковин, между которыми вклеены четыре поперечные ступеньки. Одна из ступеней выполняет функцию сиденья, остальные используются только для подъема по лестнице.
Первоначально потребуется перенести контуры боковых стоек стула стремянки на доски. Это можно сделать двумя способами. В первом случае контуры переносятся с помощью прорисовки линий с помощью копировальной бумаги. Второй способ позволяет сделать работу намного быстрее — можно просто распечатать контуры деталей будущего стула-стремянки и наклеить бумагу на деревянную заготовку.

На первом этапе нужно сделать продольные пазы или пропилы на каждой боковине большой и малой частей стула-стремянки, как на фото. Пазы необходимо сделать по двум причинам, во-первых, они будут необходимы при дальнейшей обработке заготовок. Во-вторых, в пазы будут вставляться дощечки ступеней. Если сделать крепление ступеней только на саморезах, жесткость стула-стремянки будет очень небольшой, и вся конструкция быстро развалится под весом человека.

Далее сверлом и фрезой нужно сделать несколько сквозных отверстий, лучше всего в угловых точках внутренних контуров. Это нужно сделать, чтобы иметь возможность вырезать электролобзиком выборки по ажурной резьбе.
Вслед за внутренними контурами таким же способом вырезаем наружные линии боковин. После того как были вырезаны все четыре боковины, две для большей части стула-стремянки и две заготовки – для меньшей, потребуется сделать калибровку размеров, как на видео
https://youtube.com/watch?v=oQq1OMXHA1Q
Для этого две боковые заготовки складываются попарно и обрезаются на фрезере. Это позволяет сделать оба элемента стула–стремянки абсолютно идентичными по форме и размерам. Заодно снимаем фаски, заусенцы, обрабатываем поверхность шлифовальной и полировальной насадкой.
Ступени для стула–стремянки лучше всего сделать из дубовой доски, толщиной 15-20 мм. Для большой поворотной части стула нужно будет сделать три ступени, все три разного размера. Для меньшей стационарной части потребуется вырезать две ступеньки, и тоже разного размера. Вырезанные в размер заготовки ступенек аккуратно склеиваются с боковинами. Для этого нужно промазать места склейки столярным или эпоксидным клеем и вставить заготовки в пазы. Чтобы выдержать геометрию стула-стремянки, склейку лучше всего сделать с фиксацией в столярных струбцинах.
После того как клей высох, в обязательном порядке ступени стула-стремянки усиливают столярными саморезами. На этом этапе у нас получились две небольшие конструкции, одна похожа на короткий стул, вторая — на табурет. Чтобы сделать из них полноценную раскладную лестницу-стремянку, нужно соединить две части мебельной или рояльной петлей.
Внимание! Чтобы при пользовании вертикальная нагрузка на стул-стремянку не деформировала и не отрывала крепление петли, в конструкции используют специальные упорные штифты. Последним элементом стула является спинка
Ее нужно сделать и установить на стул стремянку в обязательном порядке. В противном случае передние опоры лестницы будут неустойчивыми и достаточно быстро выйдут из строя
Последним элементом стула является спинка. Ее нужно сделать и установить на стул стремянку в обязательном порядке. В противном случае передние опоры лестницы будут неустойчивыми и достаточно быстро выйдут из строя.
Стул-стремянка практически готов к работе, нужно сделать наружную отделку морилкой или лаком.
Получилась симпатичная конструкция, которую можно не прятать, а наоборот, установить на кухне или в прихожей, где всегда есть работа для таких устройств.
Раскладной стул-стремянка своими руками
Складывающаяся модель изготавливается несколько сложнее, чем предыдущий вариант, но при этом имеет более изысканный вид и при необходимости может трансформироваться в обычный стул.
Фигурные элементы вырезаются по лекалам. Кромки обрабатываются с помощью наждачной бумаги. Подвижная часть соединяется с неподвижной при помощи рояльных петель. Имея определенные навыки и терпение, Вы сможете сделать своими руками подобную конструкцию.
Еще одной альтернативой может стать конструкция, состоящая из табурета и подвижного модуля, который в сложенном положении спрятан под сиденьем. Модуль состоит из двух ступеней и выдвигается с помощью направляющих, по тому же принципу, что и выдвижные ящики. Детали данной лестницы показаны на рисунке 10.
Стул-лестница состоит из следующих элементов:
- 4 ножки 10х72,5 см;
- 2 верхние проножки 3,8х18 см;
- 2 нижние проножки 10х42 см;
- 2 верхние царги 12,5х34,5 см;
- 1 нижняя царга 10,5х34,5 см;
- верхняя ступенька 27х25 см.
Все детали имеют толщину 19 мм. Для изготовления боковых накладок понадобится 2 листа фанеры толщиной 3 мм с размерами 17х25 см.
Выдвижной модуль состоит из следующих элементов:
- 2 средние ножки шириной в 10 см и длиной в 47 см и две малые ножки шириной в 10 см и длиной в 21,5 см;
- 2 проножки ступеней шириной в 10 см и длиной в 40 см;
- 2 передние царги ступеней шириной в 9 см и длиной в 22 см;
- 1 задняя царга ступенек шириной в 10,5 см и длиной в 30 см;
- 2 ступени шириной в 18 см и длиной в 29,8 см.
Все детали имеют толщину 19 мм.
Для изготовления стул-лестницы также понадобятся:
- направляющие – 2 комплекта, каждая длиной по 31 см;
- крепежные детали: шпонки, шканты, шурупы;
- наждачная бумага;
- клей, шпатлевка, краска или мебельный лак.
Необходимо запастись и инструментами: ножовкой, лобзиком, рубанком, дрелью, шлифовальной машинкой и струбцинами.
Сначала из предварительно отшлифованных заготовок шириной 10 см выпиливаются ножки, как показано на чертеже ниже.
Затем вырезаются проножки и фанерные накладки.
Далее, в зависимости от выбранного типа креплении, необходимо выбрать пазы для шпонок либо высверлить отверстия для шкантов и соединить средние ножки. Место соединения срезается под небольшим углом. Углы ножек скругляются, что поможет избежать их скалывания.
Выпиливаются царги, при этом их верхние торцы необходимо скосить под углом в 80°. Выпиливаются и все ступеньки, после чего их ребра слегка скругляются. На нижней ступеньке необходимо сделать угловые вырезы 3,8 на 3,8 см, как показано на рисунке 10.
Когда все детали готовы, табурет-стремянка своими руками собирается с использованием шкантов и шурупов без применения клея. Это необходимо для выявления и исправления возможных огрехов. Сборка производится в следующем порядке:
- большие ножки соединяются с верхними проножками с помощью шурупов;
- прикрепляются верхние царги и нижняя царга и монтируется верхняя ступенька;
- собираются попарно средние ножки, проножки крепятся на внешнюю сторону каждой пары. Получившиеся узлы соединяются царгами;
- маленькие ножки крепятся шурупами к проножкам и соединяются царгой. Укрепляем оставшиеся 2 ступени.
Если все действия выполнены правильно, у вас должны получиться две части табурета. Теперь необходимо установить их так, как они будут соединяться, и к внешней стороне подвижных проножек прикрепить направляющую, причем ее задние торцы должны располагаться на том же уровне, что и задние кромки проножек. Весь процесс крепления выдвижного механизма показан на рисунке.
Чтобы избежать перекоса, устанавливаем в одну линию передние кромки подвижных ступеней, после чего полностью вытягиваются в паз проножек и закрепляются свободные части направляющих.
Проверяем, насколько четко работают все подвижные части табуретки, при необходимости вносим коррективы. Когда все окончательно подогнано, табурет разбирается и собирается вновь уже с использованием столярного клея.
Готовое изделие покрывается прозрачной шпаклевкой. После того, как она высохнет, наносится 3 слоя лака. Накладки из фанеры окрашиваются, после чего функциональный и эстетичный табурет-лестница полностью готов к эксплуатации.
Как сделать?
Простой
Изготовление простого стула-стремянки выглядит так. Надо вырезать и отпилить все нужные детали. Теперь нужно приступить к изготовлению сиденья.
- Необходимо взять 2 широкие доски и плотно присоединить их друг к другу. При желании их можно проклеить. Чтобы изделие было более прочным, на обратной стороне нужно прикрепить два бруска.
- Следует соединить опорные стойки. Их можно прикрепить, используя саморезы: закрепить к направляющим 2 поперечных бруска, 1 из них укрепить диагонально.
- Чтобы изготовить боковины (ножки) стула, надо отрезать внутренний контур боковины, используя сверло или электролобзик.
- Далее следует сделать лестницу: поставить её под углом и закрепить ступеньки параллельно земле.
- Как и боковины, нужно изготовить спинку для стула.
- Далее необходимо взять среднюю ступень, которая была расположена в фаске, и прикрутить её саморезами.

Теперь все нужные элементы можно собирать. Надо прикрепить к сиденью направляющие опорной стойки и тетивы лестницы. Изготовить и прикрепить ступеньку и сидушку. Когда лестница и опорная стойка будут соединены, надо закрепить рейки первым концом под сиденье, а другим между опорными стойками.
Используя рояльную петельку, надо скрепить между собой 2 части стула-стремянки. Конструкцию надо загрунтовать и закрасить лаком в 3 слоя. Если есть желание, стул-стремянку можно покрасить или разрисовать её.

Стул-трансформер
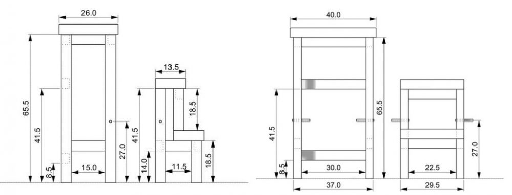
Стулы трансформеры могут состоять из 3 ступеней, а если изделие будет иметь сложенный вид, то оно будет похожим на обычный стул. Сначала нужно нарисовать чертежный образец для заготовок. Потом подготовить такие элементы:
- передние боковины (2 х 29 х 42 сантиметров) – 2 штуки;
- задние боковины (2 х 32,6 х 86 сантиметров) – 2 штуки;
- планки спинки (2 х 7 х 42 сантиметров) – 3 штуки;
- заднее сиденье (2 х 16,7 х 41 сантиметров);
- переднее сиденье (2 х 10 х 41 сантиметров);
- ступеньки (2 х 13 х 37 сантиметров) – 3 штуки;
- планки (2 х 3 х 9,6 сантиметра) – 6 штук.
Изготовление.
- Необходимо хорошенько отшлифовать все элементы будущего изделия. Используя фрезер, следует обработать заострённые торцы.
- Спинку для стульчика можно изготовить из планок. А потом, используя саморезы, прикрепить её к боковинам.
- Используя пазы, нужно соединить ступени и сиденье к боковинам. Когда нужно будет собирать конструкцию, все места соединений нужно смазать клеем и усилить шурупами. Их нужно вкрутить в подготовленные направляющие отверстия.
- Необходимо взять рояльную петлю и соединить 2 части изделия.

Есть ещё одна модель стула-трансформера – это стул-лесенка. Для этой конструкции надо приготовить следующие элементы:
- сиденье (29 х 37 сантиметров);
- стенки, которые будут располагаться по бокам (29 х 63 сантиметров);
- основания (29 х 33 сантиметров и 21 х 29 сантиметров) – 2 штуки;
- поперечные планки (2,6 х 7 х 37 сантиметров) – 4 штуки;
- опорные планки (2 х 2,6 х 7 сантиметров) – 2 штуки;
- боковые стенки (21 х 24 сантиметров);
- стенка, находящая сзади модуля (24 х 26 сантиметров).
Изготовление.
- Надо определить чертёж будущего изделия, подготовить чертёжный инструмент и все элементы, которые будут прикладываться к деревянным заготовкам для выпиливания частей предстоящей конструкции.
- Необходимо каждую деталь хорошенько отшлифовать, а также убрать все острые края и углы.
- Теперь можно собирать изделие. Попарно скрепить боковые части, используя саморезы, прикрепить перекладины.
- Надо взять рояльную петельку и соединить при помощи её табуретку и ступеньки.
Высокий табурет-стремянка
Чтобы сделать высокий табурет-стремянку, потребуются отдельные заготовки для стула и ступеней.
Конструкция стульчика состоит из следующих элементов:
- 4 больших ножки (1,9 х 10 х 72,5 см);
- 2 перекладины для нижней части (1,9 х 10 х 42 см);
- 2 перекладины для верхней части (1,9 х 3,8 х 18 см);
- Царги: 2 верхние (1,9 х 12,5 х 34,5 см), нижняя (1,9 х 10,5 х 34,5 см);
- 2 накладки из фанеры, расположенные по бокам (30,5 х 17 х 25 см);
- Верхняя ступенька (1,9 х 27 х 44,5 см).
Для ступенек подготовьте заготовки с такими параметрами:
- 4 средние ножки (1,9 х 10 х 47 см);
- 2 перекладины (1,9 х 10 х 40 см);
- 2 маленькие ножки (1,9 х 10 х 21,5 см);
- 3 передние царги (1,9 х 9 х 22 см);
- 1 задняя царга (1,9 х 10,5 х 30 см);
- 2 ступеньки (1,9 х 18 х 29,8 см).
-
- Для высокого табурета-стремянки необходимо правильно выпилить и подготовить все детали, каждую заготовку тщательно отшлифовать до идеальной гладкости.
- Дабы табурет был устойчивым, ножки должны располагаться параллельно под 10-градусным уклоном. Проследите за тем, чтобы торцы перекладин и фанерной накладки расходились.
- Если в качестве крепежных элементов для средних ножек выбраны шпонки, проделайте для них пазы (шканты вставляются в отверстия).
- Торцы царг следует срезать под углом 80°.
- При выпиливании нижней ступени сделайте два выреза 3,8 на 3,8 см, чтобы она правильно совмещалась с ножками наименьшего размера.
- Большие ножки и верхние перекладины соединяются шурупами, то же самое проделывается с царгами и верхней ступенькой.
-
- Средние ножки собираются шкантами, прикрепляются перекладины. Все вместе эти детали крепятся задней и передними царгами.
- Используйте шурупы, чтобы соединить маленькие ножки и перекладины, присоедините переднюю царгу, ступеньки.
- Установите табурет и ступени так, как они будут стоять в готовом виде, прикрутите направляющую. Если недостатков в конструкции нет, разберите конструкцию в обратном порядке и соедините все детали заново, используя клей. Струбцины применяются для плотного сжатия заготовок.
Важно! Рекомендуется при первой сборке стула не склеивать детали – это поможет определить наличие недостатков в конструкции и исправить их
Чертежи и размеры деталей
Прежде чем конструировать собственными руками стул-стремянку, надо подробно изучать чертежи и размеры будущей поделки. Бывает несколько видов такой конструкции:
- стул-трансформер;
- высокая табуретка-стремянка;
- стул-лесенка;
- табуретка-стремянка, имеющая спиральный модуль.
Первая модель – это стул-трансформер. Когда она имеет сложенный тип, то её не различить от простого стула со спинкой. А чтобы получилась стремянка, надо просто разложить элементы изделия. Если этот стул хорошо оформить, то он будет красиво смотреться в разных дизайнах интерьера. Если стремянка будет иметь разложенный или раскладной вид, то она будет состоять из трёх ступеней.
Второй моделью является высокая табуретка-стремянка. В своей конструкции она имеет высокий стул и выдвижной модуль, который при возможности можно задвигать под сиденьем табуретки. Разновидностью табуретки-стремянки является стул-лесенка. Она бывает со спинкой или без неё.
Есть ещё один вид стула-стремянки – это табуретка, имеющая стандартные размеры. Из-под сиденья этой табуретки можно выдвигать ступени по спирали. Этот стул имеет много функций, он необычен своим внешним видом и в разложенном типе, и в сложенном. Если нужно изготовить стул-трансформер, то нужно сначала разработать схему. Есть возможность воспользоваться приготовленными чертежами с размерами или же самим изготовить чертежи, имея примеры конструирования подходящей модели.
Если опираться на нормативы, то сиденье следует располагать от пола не меньше, чем на 41 сантиметр. Основание стула стремянки должно иметь глубину не меньше 41 сантиметра. Теперь нужно определиться с высотой конструкции. Можно воспользоваться стандартными характеристиками или же добавить сверху 11-16 сантиметров. Чтобы изделие было более устойчивым, можно использовать широкое основание.
Во всех чертежах стула-стремянки указываются размеры таких деталей:
- передние и задние боковины;
- планки для спины стула, сиденья, ступеней и так далее;
- опоры, которые складываются либо последовательно, либо плавно.
Будущая конструкция должна иметь минимум 3 ступени. Размеры ножек должны гарантировать качественность изделия в различных положениях. Форма опор похожа на букву «А», так как планки должны располагаться в наклонном положении и соединяться перекладиной. Чтобы конструкция была устойчивой, надо знать, что уголок наклона царга и ножек составляет 80 градусов. Ступеньки должны иметь расстояние между собой не более 21 сантиметров, чтобы стул стремянку было комфортно эксплуатировать. Конструкция имеет сиденье, которое должно делиться на 2 части, деление проходит по размещению центральных опор.
Как только были определены габариты модели и способы крепления деталей, схему надо перенести на листок бумаги с миллиметровой разметкой. Необходимо хорошенько прорисовать все части изделия и следовать порядку монтажа деталей. Имея все соответствующие эскизы, нужно приготовить лекало для заготовок. Используя копировальную бумагу, можно перенести изображение будущей конструкции на листок фанеры или древесины.
Чертеж трансформеров и размеры деталей
При изготовлении лестницы-трансформера своими руками, можно воспользоваться типовыми размерами (указаны в миллиметрах) заготовок:

1. Чтобы собрать стул трансформер, нам понадобятся:
- две передние боковинки, 20*270*400;
- две задние боковинки, 20*325*850;
- три планки для спинки стула, 20*50*400;
- заднее сиденье, 20*165*400;
- переднее сиденье, 20*90*400;
- три ступеньки, 20*120*360;
- шесть планок, 20*20*95.
2. Лестница трансформер собирается из:
- сиденья, 280*360;
- боковых стенок, 280*620;
- основания, 280*320;
- основания, 200*280;
- четырех поперечных планок, 25*60*360;
- двух опорных планок, 20*250*60 ;
- боковых стенок, 200*230;
- задней стенки, 230*240.

Чертеж высокого табурета-стремянки.
3. Высокий табурет стремянка будет собираться из:
- четырех основных ножек, 19*100*725;
- двух нижних перекладин, 19*100*420;
- двух верхних перекладин, 19*38*180;
- двух верхних царг, 19*125*345;
- двух нижних царг, 19*105*345;
- двух боковых накладок, 305*170*250;
- верхней ступеньки, 19*270*445;
- четырех средних ножек, 19*100*470;
- двух перекладин, 19*100*400;
- двух маленьких ножек, 19*10*215;
- трех передних царги, 19*90*220;
- задней царги, 19*105*300;
- двух ступенек, 19*180*298.

Схема табурета-стремянки с винтовым модулем.
4. Табурет стремянка с винтовым модулем состоит из:
- основания-сиденья, 300*580;
- верхней ступеньки, 240*520;
- нижней ступеньки, 175*450;
- трех высоких круглых ножек, 38*571;
- трех средних круглых ножек, 38*368;
- трех низких круглых ножек, 38*165;
- ступенчатой ножки, размеры которой сужаются книзу и составляют: 76*165, 57*203, 38*203.
Чертеж требует внимательного и детальной прорисовки всех элементов изделия. По нарисованным эскизам необходимо подготовить лекала заготовок.
Конструктивные особенности модели
Табурет-стремянка чаще всего изготовлен из дерева. Выглядит конструкция как традиционный стул, но при необходимости преображается в удобную лесенку, которая позволяет доставать вещи с высоких полок, менять сгоревшие лампочки или выполнять мелкие ремонтные работы. Предмет мебели состоит из передней и задней боковин, сиденья, спинки, ступенек. Основные особенности изделия:
- компактные габариты;
- отсутствие потребности в дополнительной опоре;
- простота перемещения с места на место;
- способность выдерживать внушительный вес без потери устойчивости;
- быстрая трансформация в лестницу.
Сиденье без труда откидывается, может использоваться в качестве ступеньки. Размеры и масса конструкций больше по сравнению со стандартной мебелью. В частных домах и просторных квартирах этот нюанс не имеет особого значения. В условиях ограниченной площади придется выделять отдельное место для хранения мебели.
Главные достоинства подобных стульев — универсальность использования, безопасность, удобство. Изначально конструкции нашли применение в библиотеках, поскольку позволяли дотягиваться до верхних полок. Впоследствии они получили куда более широкое распространение.
Проектирование и расчёт
Прежде чем приступить к сооружению какой-либо конструкции, необходимо сначала тщательно все спланировать, начиная от места расположения и заканчивая количеством материалов. Нужно подойти к этому шагу максимально ответственно, так как от подготовки во многом зависит успех всего предприятия. Оптимальные величины будут приведены в качестве примера, однако, важным шагом является снятие собственных замеров. Для начала следует составить чертеж, на котором будет наглядно отражена вся основная информация. Для этого нужно произвести несложные вычисления, воспользовавшись пошаговой инструкцией, приведенной ниже.
Количество и высота ступеней
В первую очередь рассчитывают высоту и количество ступенек. Однако прежде чем перейти непосредственно к этим расчетам, нужно узнать высоту самой лестницы. Делается это очень просто: нужно всего лишь определить путем измерений высоту от пола первого этажа до пола второго этажа. Можно сделать проще: взять высоту стен на первом этаже и прибавить к этой величине толщину перекрытия между этажами. Например, высота стен равна 3,1 м, толщина перекрытия – 40 см. Тогда высота лестницы будет 3,1+0,4=3,5 м.
Высота подступенка является стандартной и может колебаться в пределах 15,2–19,7 см. Выше или ниже делать ступени не рекомендуется, так как они неудобные при подъеме. Следует выбрать любое значение в заданных пределах, для примера возьмем 18 см. Чтобы рассчитать количество ступеней, необходимо высоту лестницы поделить на высоту подступенка: 350/18 = 19,44 см. Округлять лучше в большую сторону: количество ступеней будет равно 20. При несложных пересчетах получается, что высота подступенка будет 17,5 см: 350 (высота лестницы) / 20 (количество ступеней).

Ширина поступи
Ширина поступи должна находиться в пределах 22–40 см. Чтобы рассчитать ширину, подходящую именно для конкретного случая, есть формула: двойная высота подступенка в сумме с шириной поступи дает 64 см. Согласно второй формуле, высота подступенка, суммированная с шириной поступи, дает 47 см. Стоит наглядно рассмотреть, как работают формулы.
- 64 – 17,5 (ширина подступенка) = 46,5 см. В данном случае ширина получилась слишком большой.
- 47 – 17,5 = 32,5 см. Ширина поступи находится в оптимальных пределах, поэтому можно взять данное значение за эталонное. Следует округлить до 33 см.

Ширина марша
Минимальная ширина лестничного пролета равна 80 см, однако, жестко она нигде не запротоколирована. Больший упор делается не на то, что необходимо делать марши какой-то определенной величины, а на их количество. Оно зависит от местоположения лестницы и определяется на месте. Стоит взять на заметку способ определения, которым пользуются профессионалы. Они выбирают марш с шириной, которую можно без остатка разделить на ширину поступи. В нашем случае подойдут следующие величины: 66 см (33х2), 99 см (33х3), 132 см (33х4) и так далее.

Длина лестницы
Длина лестницы определяется просто. Для этого понадобится два ранее выведенных значения: количество ступеней и ширина поступи. Необходимо их перемножить: 33х20 = 660 см. Лестница получается очень длинной, поэтому нужно рассмотреть варианты поворотной или криволинейной лестницы. Мало в каких домах можно разместить лестницу практически в 6,5 м длиной. Длину винтовой лестницы нужно будет рассчитывать при помощи специальных программ.


Высота просвета
Имеется в виду расстояние от потолка до ступеней. От этого параметра зависит, какого именно размера будет отверстие в полу второго этажа, к которому примыкает лестница. Следует помнить, что зазор между потолком и лестницей должен составлять не менее 180 см, в идеале – 200 см. Следует отмечать место под проем там, где это расстояние между потолком и ступенью становится меньше.


Длина косоура
Чтобы рассчитать длину косоура, необходимо будет воспользоваться теоремой Пифагора: длину лестницы в квадрате добавить к высоте лестницы в квадрате и вывести квадратный корень. На нашем примере получится 660² + 350² = 435600 + 122500 = 558100; √558200 = 747,06 см. Возьмем с запасом, округлив до 750 см. Как видно, схема расчетов довольно простая. Можно обойтись без всевозможных профессиональных величин типа угла наклона, просто рассчитав все необходимые показатели, пользуясь школьными знаниями по математике. Уклон лестницы при этом получится комфортным, так что не будет нужно пригибаться или бояться упасть из-за того, что лестница получилась слишком крутой.

Виды стула
Стулья в форме стремянок подразделяются на простые складные, стационарные, телескопические и трансформируемые модели.
Стандартные стремянки складного типа состоят из опоры и лестницы. Ступени в конструкции широкие, позволяющие стоять на платформе без дополнительной поддержки. Опорные стойки соединены креплениями для усиления системы. Популярны двухсторонние конструкции, которые дополняются выдвижными площадками.
Телескопические модели представлены сложными техническими системами, снабженными раздвижными секциями. Для безопасной эксплуатации вверх выдвигаются рейки, за которые можно придерживаться во время работы. Лестница-стул часть снабжается винтовым модулем.
Трансформер стул стремянка в собранном состоянии используется в качестве посадочного места. Модели выпускают также миниатюрными, изделия снабжены сиденьем для стула и выдвигаться могут только на 3 ступени. Сложные конструктивные системы оснащены шарнирными креплениями и направляющими, которые позволяют раскладывать от 6 ступеней в высоту. В числе моделей есть табуреты, оборудованные подъемными основаниями.
Конструкции раскладных моделей разделяются на односторонние и двусторонние:
- Особенность односторонних конструкций заключается в наличии ступеней с одной части стремянки, противоположная сторона является опорой. Габариты моделей меньше, чем у двусторонних аналогов. Для совместной работы на возвышении конструкция не подходит, т.к. вес распределяется в изделии неравномерно. Облегченные конструкции стоек с платформами удобны при ручной транспортировке.
- Двусторонняя раздвижная стремянка отличается от односторонней наличием ступеней с каждой стороны. Это позволяет организовывать сложные строительные работы, т.к. на конструкции допускается размещение 2 специалистов. Можно использовать 1 сторону конструкции в качестве приспособления для рабочих инструментов. Двухстороннее изделие устойчиво и надежно в эксплуатации.
Стационарные
Стационарные стулья стремянки не раскладываются. Изделие имеет форму высокого табурета, на котором удобно сидеть. Ступени в конструкции монтируются от сиденья до поверхности пола. Модели используются как подставки для декора, аксессуаров. Недостаток изделия в том, что оно выглядит громоздко.
Стационарные стремянки часто имеют бытовое назначение, но разработаны и строительные модели. Конструкции с платформами представляют собой стремянки с устойчивой площадкой и блоком для работы. Опорная и лицевая части могут дополняться колесиками для удобства использования. Профессиональные стремянки выполняются из алюминиевых сплавов или нержавеющей стали. Рабочая площадка может снабжаться рифленой поверхностью и блоком под материалы. По ГОСТу модели с рабочим настилом выше 1,3 м от пола должны быть оснащены заграждениями в виде перил или бортиков.
В малогабаритных квартирах-студиях у стола размещают барный стул стремянку. Изделие обеспечивает посадочное место и выполняет задачи лестницы или тумбы. Модель позволяет дотягиваться с платформы до потолка типовой квартиры. Изделие просто в обслуживании, т.к. металлическая рама табурета стремянки сварная и крепится к конструкции на болты без сложных устройств на шарнирах.
Раскладные
Раскладные стулья стремянки снабжены механизмом, который позволяет легко разбирать, складывать конструкцию и убирать. Изделия эргономичны и практичны, т.к. не занимают пространство в помещении.
Стул трансформер позволит выполнять ремонтные работы (отделка стеновых панелей, установка лампочек, разбор антресолей и т.д.) на высоте больше человеческого роста. Дополнением к конструкции, которая совмещает функции стула и лестницы, может быть гладильная доска.
Трансформируемая модель также складывается в этажерку с выдвижными полками, подставку и т.д. Конструкция заменяет несколько предметов мебели, что оптимально для малогабаритных квартир.
Как сделать стремянку из высокого табурета
Сборка высокого табурета-стремянки выполняется в три этапа:
- Изготовление стула.
- Изготовление ступенек.
- Сборка всей конструкции.
Стул собирается из:
- четырех больших ножек (72,5×10 см, толщиной 1,9 см);
- двух нижних перекладин (10×42 см, толщиной 1,9 см);
- двух верхних перекладин (18×3,8 см, толщиной 1,9 см);
- царг: двух для верхней части конструкции (34,5×12,5 см, толщиной 1,9 см) и одной для нижней (34,5×10,5 см толщиной 1,9 см);
- двух фанерных накладок для боковых частей (30,5×25 см);
- верхней ступеньки (44,5×27 см, толщиной 1,9 см).
Ступеньки собираются из заранее выпиленных заготовок:
- средние ножки размером 10x47x1,9 см – 4 штуки;
- перекладина размером 10x40x1,9 см – 2 штуки;
- маленькие ножки 21,5x10x1,9 см – 2 штуки;
- царги для передней части 22x9x1,9 см – 3 штуки;
- царги для задней части 30×10,5×1,9 см – 1 штука;
- ступени шириной 18 см, длиной 29,8 см – 2 штуки.
Работа выполняется поэтапно, при этом каждая деталь выпиливается по заранее подготовленным замерам, ее поверхность должна быть гладкой:
- Для придания конструкции устойчивости ножки следует зафиксировать параллельно под углом 10°.
- Накладка и перекладины с торцов не должны расходиться.
- При использовании шпонок для сборки конструкции табурета необходимо выпилить нужное количество пазов под них.
- Царги с торцов подрезаются под углом 80°.
- Чтобы нижняя ступенька хорошо совмещалась с передними ножками, под ней следует вырезать два квадрата 3,8×3,8 см.
- В местах соединения больших ножек с верхними перекладинами используются шурупы, аналогичным способом производится крепление верхней ступени и царг.
- Сборка средних ножек осуществляется шкантами с последующим креплением перекладины.
- Сделанные ранее конструкции соединяются на заднюю и передние царги.
- Перекладина шурупами прикручивается к маленьким ножкам, крепится передняя царга и ступени.
Осталось закрепить обе заготовки в единую конструкцию с помощью направляющей. Если пробная сборка получилась подходящей, то можно смело разбирать изделие и собирать уже с проклеиванием всех элементов. Максимально плотное прилегание деталей достигается с помощью струбцин.
Конструкция
Прежде чем приступить к рабочему процессу, следует четко понимать, что из себя представляет стул-стремянка? Из самого названия, очевидно, что данный мебельный предмет совмещает в себе две вещи – стул и лестницу.
Табурет-стремянка состоит из ступенек, ножек и сидения. В зависимости от типа сборки его конструкции, ступеньки могут откидываться вместе с сидением или раскладываться отдельно от него.
Внимание: табурет-стремянка, независимо от типа его конструкции, будет иметь внушительные размеры и вес.
Что касается вариантов сборки, то самыми востребованными и распространенными среди домашних мастеров являются модели:
- Табурет-стремянка со спиральным модулем. Он изготавливается в максимально оперативные сроки и не представляет особой сложности благодаря легкой конструкции.
Внешне изделие выглядит как обычный табурет, оснащенный 2-3 ступенями.
- Высокий табурет-стремянка.
Такой мебельный предмет изготавливается в виде пары ступеней, которые затрагивают и место для сидения, выдвигающегося с помощью направляющих или выдвижных ящиков.
- Стул–трансформер. В такой модели раскладывается именно та часть изделия, на которой принято сидеть в сложенном виде.
- Лестница–трансформер. В таком изделии ступеньки выдвигаются по направляющим, не затрагивая сидячего места.
По разновидностям, табуреты-лестницы могут быть:
- Стационарными. Это самый простой и экономный вариант. Сделать такой мебельный предмет можно как их дерева, так и из металла. Но к его недостаткам будет относиться небольшая высота.
- Раскладными. Данный вариант отличается компактностью и удобством в использовании. На его изготовление уйдет немного больше сил и времени. Но в результате, у вас получится эстетичный стул, который при необходимости будет раскладываться в лестницу.
Сборка спинки
Если вы решили изготовить садовую скамейку-трансформер, то на следующем этапе можно заняться спинкой. Она будет одновременно еще и столешницей. Изготовить эту часть изделия необходимо из 5 досок, которые будут формировать общую плоскость. Размеры спинки равны 57х126 см. Соединение заготовок между собой осуществляется с помощью пары планок. В этом помогут саморезы, которые скрепляют доски.
С одной стороны столешницы должны быть зафиксированы упоры, которые будут иметь толщину, равную 20 мм. Заготовки необходимо спилить под углом в 115°. Он будет определять наклон спинки. С помощью саморезов все упоры фиксируются на следующем этапе. Впоследствии вы будете использовать саморезы и металлические соединения, которые позволят всё соединить в единую конструкцию.





