Содержание
Чертеж, стандартные размеры
Перед самостоятельным изготовлением любой модели кухонного стула необходимо сделать грамотно продуманную схему. На ней отобразите не только дизайн изделия, но и материалы его изготовления, габариты и элементы крепления. Сделать чертеж стула можно разными способами:
- нарисовать от руки;
- найти подходящий вариант в интернете;
- заказать у специалистов;
- воспользоваться компьютерными программами.
Каждый отдельный вариант имеет свои особенности.

Стандартными размерами кухонного стула со спинкой можно назвать:
- высоту от 70 и до 100 см;
- высоту от пола и до сидения — 40 см;
- глубину сидения — 50 см;
- ширину сидения — 40 см;
- ширину спинки от 40 см.
Процесс изготовления, пошаговая инструкция
Чтобы облегчить себе работу по созданию детского деревянного стульчика, нужно предварительно ознакомиться с процессом сборки:
- перенести детали с чертежа на материал;
- выкройку выпилить по контуру, вырезать выемки, если они есть;
- обработать все срезы напильником (или фрезером с насадкой для снятия фаски), а затем отполировать наждачной бумагой;
- сделать отверстия под конфирматы или саморезы и собрать изделие;
- покрыть его лаком или краской, декорировать по вкусу.

Обработка материала
Бумажные шаблоны для одинаковых частей переносят на лист фанеры или мебельный щит. При раскраивании желательно соблюдать зеркальность парных деталей. Углы сиденья, подлокотников и пр. делают слегка скругленными.
Для выпиливания используют электролобзик. Мелкие зубья позволяют сделать срезы ровнее и дают возможность вырезать даже кривые с небольшим радиусом. Когда все детали будут вырезаны, снять часть древесины с кромки (потребуется калевочная фреза или напильник). После такой обработки все кромки деталей приобретают округлую форму, а все заусеницы на них удаляются.
Обработанные начерно детали шлифуют наждачной бумагой до полной гладкости кромок. Такой обработке подвергают не только лицевые части, но и любые внутренние выемки (декоративные или функциональные), и те части, которые будут находиться на стыках и соединениях. В последнем случае для лучшего прилегания деталей кромку не нужно сильно округлять, достаточно убрать сколы или заусеницы.
Крепление можно выполнить и иначе:
- разметить места установки спинки и сиденья, проножек и других деталей, которые будут соединять 2 боковины;
- для крепления использовать мебельный уголок, вкручивая короткие саморезы с изнанки через штатные отверстия.
Делаем обычный стул и стол
Для простого стола и стула необязательно изготавливать сложные детали для соединения «шип-паз». Красивую и легкую в сборке конструкцию можно подсмотреть на стульчиках в Икеа или подобном магазине:
- столешница выпилена из листа ДСП или фанеры, со скругленными углами;
- ножки могут иметь форму простых прямоугольников или декорированы несложным криволинейным контуром на боковых сторонах;
- боковины стула-кресла выпилены целиком с ножками и опорой спинки;
- сиденье и спинка — прямоугольники нужного размера;
- кроме основных деталей есть проножки — неширокие полосы или бруски, которые закреплены между боковинами и придают конструкции жесткость.
Сделать детский столик и стул легко, соединяя ножки стола проножкой в центральной части, используя конфирматы или уголки и саморезы. Столешницу кладут сверху:
- если проект предусматривает наличие пропила для ножек, делают его специальной фрезой;
- если пропил не нужен, столешницу просто кладут сверху и крепят с лицевой или изнаночной стороны (на саморезы или уголки, соответственно).

Изготовление стульчика для кормления малыша
Детский стул из фанеры с откидной столешницей делают по такой же схеме. В отличие от простого стула, у него есть дополнительная деталь.
Столешницу прикрепляют на длинные болты с гайками и шайбами. Для такого крепежа нужно просверлить сквозные отверстия в концах столешницы и на боковинах возле подлокотников. Подвижное соединение позволит легко поднять и опустить столик.
Результат
Таким образом собирается самый обычный стул для дома, дачи или для работы. Со временем новичок может усложнить конструкцию, добавить декора, использовать другие типы соединений и материалы. При этом можно также использовать рекомендации из сети.
Сделанный своими руками стульчик — это не только комфортный предмет быта, но и символ комфорта, предмет гордости для каждого мастера. С опытом такой стул своими руками может даже стать предметом искусства, но главное все же, чтобы на нем было удобно сидеть. А стул действительно лучше и удобнее, чем табурет, он гораздо привлекательнее и незаменим в доме. Поєтому знать, как сделать стул, должен каждій мастер.
Как сделать из дерева?
Первое, с чего начинают сооружение стула для дачи ― это изготовление каждого отдельного элемента конструкции. Выполняют работы следующим образом:
Вырезают из ДСП или фанеры сиденье соответствующего размера. На короткой стороне сиденья отмечают и проделывают вырезы, размер которых равен 35×44 мм.Такие вырезы нужны для дальнейшей установки сиденья между опорами спинки.
Изготавливают задние ножек, переходящих в устои. В соответствии с размерами и формой на чертеже, вырезаются детали. После этого делают разметку для дальнейшей установки шипов, перекладины и царги. Такие выемки и отверстия сразу просверливают, используя дрель. Диаметр отверстий 9,5 мм.
Вырезают ножки, в которых проделывают пазы для дальнейшего присоединения царг
Высота их расположение такая же, как и у пазов для прикрепления задних царг.
Особое внимание уделяется самим царгам. После их вырезки нужно произвести примерку элементов к ножкам и убедиться, что они легко входят в проделанные пазы.
Аналогичным образом вырезают и боковые царги
Отличие элементов лишь в длине.
Следующий этап ― конструирование спинки. В зависимости от конструкции, вырезают соответствующие детали. Края элементов должны также легко соединяться с пазами в устоях ножек.
Передние ножки выполняют из бруса, учитывая размеры на чертеже. В верхней части готовых элементов вырезают пазы (на каждой ножке по два) открытые сверху. Стоит помнить про зеркальное расположение таких выемок на двух ножках.
Последний элемент, который требуется подготовить ― это упоры. Они закрепляют сиденье и присоединяются к боковым царгам. На таких упорах высверливают сквозные отверстия (3 шт.), через которые в дальнейшем проводят крепление сиденья/
Все детали нужно отшлифовать, обработать антисептиком или покрыть лаком.
Последним этапом является сборка, которая начинается со спинки стула. Элементы конструкции в местах соединения проклевываются и стягиваются струбцинами. Струбцины снимать нужно только после того, как полностью высохнет клей. Можно также пользоваться саморезами и другими крепежными элементами.
После сборки каркаса высыхания клеевого состава, прикрепляются царги, упоры и последним сиденье.
В завершении процесса сборки нужно перевернуть стул и через проделанные сквозные отверстия в упорах вкрутить саморезы (длина 35 мм).
Совет: на дачу так же можно сделать диван, кровать, стол и скамейку-трансформер. А если вы любите активный отдых, то сделайте в дополнение ко всему теннисный и бильярдный столы.
Как сделать деревянный вариант?
Несмотря на широкий выбор материалов для изготовления стульев со спинкой, самыми распространенными считаются изделия из пиломатериалов. В данной статье мы рассмотрим изготовление простой модели стула со спинкой из натурального дерева. Его высота будет составлять – 929 мм, а ширина – 430 мм. Такой стул будет удобным в использовании, как в квартире, так и в частном доме. Изготовление любого мебельного предмета начинается с его деталировки. Нам потребуется подготовить следующие элементы:
- прямоугольное сидение размером 440*430мм;
- 2 задних ножи высотой 929 мм. Они будут совмещены с боковыми устоями;
- 2 передних ножки высотой 425 мм;
- 2 боковые царги длиной 396 мм;
- переднюю и заднюю царги длиною 371 мм;
- 2 перекладины для спинки длиной 396 мм;
- бруски длиной 385 мм, которые будут крепиться к боковым царгам.
Процесс изготовления стула со спинкой будет выглядеть следующим образом:
- Сначала заготавливается сидение. Для этих целей прекрасно подойдет фанера толщиной 8 мм.
На короткой стороне сидения делаем вырезы 35 на 44 мм. Они нужны для того, чтобы сидение плотно встало между устоями спинки. Все выступающие углы на сидении, округляются фрезером.
- Далее переходим к изготовлению самых сложных частей стула – задних ножек, переходящих в устои. Для этого подготавливаем две доски размерами 115 на 929мм и толщиной не менее 25 мм.
На доски переносим размеры согласно нашему чертежу, тщательно проверяем все линейкой и вырезаем детали. После этого сразу же намечаем места для пазов, шипов перекладин и задней царги. Выпиленные ножки зачищаем шлифмашинкой до идеально гладкой поверхности.
- Теперь приступаем к изготовлению передней и задней царги. Их вырезаем из доски размерами 396 на 75 мм и толщиной 18 мм. По краям царг делаем шипы размерами 18 на 73 мм и шириной 9 мм. Боковые царги заготавливаются таким же образом, так и передние с задними. Эти детали только отличаются длиной.
- Теперь переходим к изготовлению спинки и перекладин. Для этого подготавливается доска габаритами 396 на 100 на 40 мм. Сначала на доске делается разметка под шипы высотой 66 мм, глубиной 18 мм и шириной 9,5 мм. Далее делается разметка ширины спинки. Она у нас будет фигурной, следовательно, ее форма будет криволинейной. Выпиливается спинка стула фрезером по окружности радиусом в 500 мм.
- Далее изготавливаем передние ножки из бруса размерами 425 на 50 на 25 мм. На их верхней части делаем пазы для сборки.
- Последними вырезаются упоры для крепления сидения к каркасу (их размер составляет 385 на 25 на 15 мм) и крепятся упоры на боковых царгах.
Теперь осталось проверить все детали по размерам, тщательно их отшлифовать и можно приступать к сборке стула в следующей последовательности:
- Сначала собирается спинка изделия и садится на мебельный клей. В пазы спинки вставляются задние ножки и устои и приклеиваются перекладины и задняя царга.
Для прочного склеивания детали крепятся струбцинами и оставляются так до полного высыхания клеевого состава.
- Таким же образом вклеиваем переднюю царгу в передние ножки. Для лучшего скрепления деталей, помимо клея рекомендуется закрепить их саморезами. В таком случае, шляпки необходимо углубить в древесине, а потом зашпаклевать.
- После полного высыхания клея, задняя часть стула скрепляется с боковинами с помощью клея и саморезов. Это весь процесс изготовления каркаса. Теперь мебельный предмет отставляется до полного высыхания клеевого состава.
- Переходим к завершающим работам. К внутренним сторонам боковых царг прикрепляем планки с упорами для дальнейшего крепления сидения.
- Далее на верхние боковые царги наносится клей и сверху укладывается сидение. Вся конструкция скрепляется струбцинами.
- Когда клей подсохнет, переворачиваем предмет вверх ногами и в упорные рейки сидения вкручиваем саморезы шуруповертом. Для этих целей лучше использовать саморезы 35 мм.
Это мы рассмотрели самый простой вариант изготовления деревянного стула со спинкой своими руками. С данной моделью в состоянии справиться даже новички в изготовлении мебельных предметов.
Варианты
Чертежи стульев, которые можно найти в открытом доступе предлагают на выбор несколько самых распространенных и востребованных моделей. Складные и со спинкой, качалки и на колесиках отличаются скорее дополнительными элементами, но при этом объединяются общей схемой.

Поэтому, потренировавшись на легких модификациях, к которым можно отнести табурет, впоследствии легко перейти к более сложным и оригинальным вариантам.

Навыки обращения с инструментами пригодятся в любом случае, поскольку без них создать деревянную мебель невозможно
Уделив определенное время и внимание творчеству, можно рассчитывать на отменный результат, который порадует домочадцев и станет объектом гордости мастера.






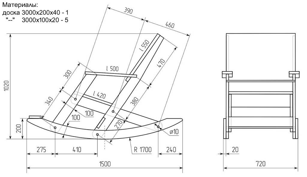
Конструирование кресла-качалки из фанеры
Чаще всего мебельные салоны предлагают своим потребителям конструкции кресел-качалок, рассчитанные на одного человека. Любители самостоятельно конструировать мебель для дома могут сделать этот элемент меблировки из расчёта на двух человек.

Любители самостоятельно конструировать мебель для дома могут сделать этот элемент меблировки из расчёта на двух человек
На начальном этапе подготавливается материал и оборудование для изготовления конструкции. Для работы следует выбрать материал оптимального качества. Такая фанера при соответствующем подходе к выполнению работ гарантирует высокое качество мебели.
В процессе работы потребуются следующие инструменты:
- электрический лобзик;
- набор ножовок по дереву;

Ножовка для изготовления мебели из фанеры
- дисковая шлифмашинка и набор насадок;
- шуруповёрт с набором свёрл и бит;

Шуруповёрт для изготовления мебели из фанеры
- строительный уголок;
- шпатель, рулетка, молоток, карандаш.
Перед работой следует подготовить рабочее место для того, чтобы было удобно проводить раскрой материала. Все инструменты должны располагаться под рукой в непосредственном доступе.
Рулетка для изготовления мебели из фанеры
На втором этапе производится создание чертежа и раскрой материала. Чертёж следует подготовить для того, чтобы не ошибиться при проведении раскроя. Для удобства создаётся лекало. После создания лекала подготавливаются заготовки для кресла из фанеры.
В процессе работы используется материал, имеющий толщину 30 мм. Помимо фанеры в процессе работы потребуется ещё брус 50х25. Для сборки спинки и сидения кресла потребуется 35 брусков, каждый из брусков должен иметь длину 1200 мм.
После подготовки всех элементов конструкции проводится их ошкуривание и подготовка к сборке кресла. Для предупреждения негативного воздействия на мебель различных факторов все конструктивные элементы следует обработать олифой, лучше в 2 слоя.

Чертежи простого кресла-качалки
Подготовленные и высохшие элементы собираются в единую конструкцию в соответствии с чертежом.
В процессе проведения сборки следует проявить внимательность, так как этот этап работы является наиболее продолжительным и кропотливым. При проведении сборки требуется следить за тем, чтобы не возникало перекосов между элементами конструкции.
Завершающий этап – покрытие водоотталкивающим лаком в 3 слоя.
Присоединяйтесь к обсуждению! Нам было бы интересно узнать вашу точку зрения, оставьте свое мнение
Стул из цельного куска дерева
Классический деревянный стул с объемной резьбой станет украшением любой квартиры. А ведь он изготовлен из цельного ствола дерева. Разумеется, найти такой материал для мебели нелегко, но возможно.
Обратите внимание, что заготавливать древесину лучше осенью или зимой. Тогда существует меньшая вероятность, что во время сушки она растрескается

Что надо для работы
- Просушенный ствол дерева.
- Бензопила.
- Электрический лобзик.
- Шлифмашина с насадками разной зернистости.
- Стамески и резцы для резьбы по дереву.
- Простой карандаш.
- Линейка.
- Морилка.
- Лак.
Описание работы
- Бензопилой удаляем все лишнее, придав древесине приблизительные очертания стула со спинкой.
- Рубанком и шлифмашинкой сглаживаем самые заметные неровности деревянной заготовки.
- С помощью лобзика делаем боковые пропилы в нижней части, обозначая наличие четырех ножек. Далее придаем ножкам желаемую фигурную форму.
- На спинку стула простым карандашом наносим будущий рисунок. Советуем использовать трафарет, чтобы узор получился симметричным.
- С помощью электрического лобзика делаем пропилы, удаляя лишнюю древесину.

- Бензопилой выпиливаем отверстие в сиденье для мягкой вставки. Чтобы было удобно его установить, формируем небольшую (около 1-1,5 см) ступеньку.
- Ножом и стамеской придаем ножкам нужную форму. Шлифуем их.
- Используем специальные резцы и стамески для придания узору гладкости и округлой формы.
- Тщательно шлифуем всю заготовку. Удаляем пыль и загрязнения перед нанесением лакового покрытия.
- Покрываем изделие морилкой. Оставляем высохнуть.
- Наносим поочередно 2 слоя мебельного лака. Каждым последующим слоем покрывайте только после полного высыхания уже нанесенного (через 24 часа).
- Вырежьте из тонкой фанеры сиденье и овальную вставку на спинку.
- Приклейте на фанерные заготовки 5 мм поролон.
- Обтяните мягкую часть спинки и сиденье декоративной тканью, зафиксировав ее с обратной стороны скобами с помощью мебельного степлера.
- Обратную сторону мягкой части сиденья закройте технической тканью.
- С помощью клея установите мягкие части на места. Зафиксируйте до полного высыхания.
Источник
Сиденье для бара из профильных труб
Подобная мебель позволяет наиболее полно создать атмосферу бара в любом помещении. Это самый эффектный вариант с точки зрения дизайна.
Необходимые инструменты и материалы
Данный материал тоже часто применяется в изготовлении барных стульев. В таком случае лучше брать за основу нержавеющую хромированную сталь. От применения пластиковых или ПВХ-труб предпочтительнее воздержаться, поскольку их прочность не такая высокая, как у металлической основы. Помимо этих труб, при создании стульев задействуют следующие материалы и инструменты:
- строительный степлер со скобами к нему;
- слесарные трубогибы;
- крепёжные болты;
- ДСП или фанерный лист;
- дрель или шуруповёрт;
- поролон для сиденья, обивочная ткань.
Пошаговая инструкция
Стулья из профильных труб делают по следующему алгоритму:
- Перед началом работ следует измерить высоту барной стойки. Это позволит определиться с габаритами будущего стола.
- Изначально необходимо сделать заготовки на основе металлических труб для основания стула. Их следует разделить на куски различной длины. Диаметр подбирают исходя из максимально возможной нагрузки на стул.
- Верхнюю часть любой из заготовок загибают при помощи трубогиба в форме полукруга.
- Их соединяют между собой болтами для крепежа. Это позволит придать изделию повышенную устойчивость.
- Сиденье конструируют из фанерного листа или древесно-стружечной плиты.
- Диаметр тоже определяют, отталкиваясь от массы тела сидящих на нём людей.
- После того как будет изготовлен каркас сиденья, к нему при помощи степлера фиксируют кусок поролона, а затем обтягивают тканью для обивки. Следует использовать материал, который проявляет высокую устойчивость к загрязнениям и легко поддаётся сухой и влажной уборке.
- Сиденье присоединяют к месту фиксации металлических заготовок. Это делают при помощи дрели или шуруповёрта, а также элементов крепежа.
- Чтобы соорудить подставки для ног, следует отметить требуемую высоту на ножках стула. На этом уровне фиксируют отрезки металлической трубы, длина которых равняется промежутку между ножками.
Роскошь, доступная Вам
Всем знакома сцена из фильма: главный герой откидывается на спинку своего красивого резного стула и тяжело выдыхает. Это может быть кульминация или даже многозначительная развязка кинодрамы. Но в жизни никакой драмы нет, ведь подобрать себе элитный предмет интерьера может любой, кто посчитает его необходимым украшением своего дома или аксессуаром, подчёркивающим статус владельца. Нельзя не отметить разнообразие и качество используемых материалов. Вашему вниманию представлена мебель из массивов красного дерева и бука, кокосовой пальмы; обтянуты резные стулья высококачественными тканями и кожей изумительной выделки, а могут быть выполнены из дерева — тут всё зависит оттого, что подходит именно Вашему вкусу и интерьеру.
Примеры конструкций
Существуют различные формы и размеры табуретов, выполненных из дерева. Минимум деталей понадобится для изготовления классического вида конструкции. Изготовив табурет самостоятельно, наверняка захочется сделать и более сложное устройство, например, шкаф, кровать, кухонные ящики и тому подобные мебельные изделия.
Прямоугольная табуретка для кухни
При выборе материала следует обратить внимание на древесину хвойных пород. В качестве ножек используется брус размером 45х45 мм высотой до 20 мм
Для царги и распорок применяют брус с соответствующими размерами 290х60х20 мм и 290х20х20 мм. Сиденье проще изготовить из доски толщиной 60–80 мм и размерами сторон 350х350 мм.
На первом этапе готовится материал, и отпиливаются ножки требуемого размера. Они должны быть с идеально ровными срезами и равными по высоте. Следующий этап заключается в нанесении разметки для изготовления пазов. Сами они делаются с помощью стамески или фрезера.
Далее, подготавливаются царги и проножки. Для этого вырезаются шипы с размерами на один миллиметр меньше, чем пазы в ножках. Сборка происходит скреплением элементов между собой с предварительно промазанных клеем шипов деталей. После получения единой конструкции все соединения закрепляются саморезами и дожидаются полного высыхания клея. Если пазы и шипы сделать не представляется возможным, то можно использовать внутренние металлические уголки. Их размер должен быть уже, чем используемые бруса. Толщина выполняется не более одного миллиметра.
Для установки предварительно вырезанного сиденья по всему периметру с внутренней стороны наносится клей. Сиденье выравнивается на основании и прижимается. По углам, проходя насквозь сиденье, просверливаются отверстия с диаметром равным размеру шканта, глубиной меньше его длины на пять миллиметров. Отверстие заполняют клеем, и вбивается шкант. Выступающая часть шканта срезается, а место среза обрабатывается до гладкого состояния.
Последний этап в производстве табурета своими руками — зашкуривание и покраска. Берётся краска или морилка для дерева, и при помощи кисти окрашиваются все места. После просушки изделие опять обрабатывается мелкой шкуркой и наносится второй слой. Опять зашкуривается и покрывается лаком.
Складной вариант
Такого вида конструкция выполняется сложнее, чем несборный вид, но если всё делать аккуратно, то и проблем возникнуть не должно. Для конструирования понадобится:
- четыре бруса с размером 470×40 мм;
- четыре перекладины размером 320×40 мм;
- четыре бруска для сиденья, два размером 350×90 мм и два 350×60 мм;
- проножки две штуки размером 320×40 мм.
Толщина всех элементов выбирается равная 20 миллиметрам. Для крепления понадобится шесть болтов длиной 40 мм и 12 саморезов с длиной 45 мм. Бруски с размером 470×40 мм соединяются между собой болтами на расстоянии 260 мм от края таким образом, чтоб их шляпки оказались утопленными в основание бруса. Предварительно для этого высверливается углубление с длиной больше на два миллиметра, чем размер шляпки болта и гайки.
Через подготовленные отверстия соединяются внешние и внутренние перекладины размером 320×40×20 мм к наружным и внешним частям опоры конструкции. Это крепление и позволит создать подвижное соединение. К зафиксированным перекладинам, используя саморезы, прикрепляются элементы сиденья. Начинают с двух крайних брусков 350×90 мм. При этом учитывается, что наружные бруски фиксируются поочерёдно с внешней и внутренней перекладиной и выступают по отношению к ним на 20 мм.
Для усиления на расстоянии 100 мм снизу крепятся проножки. Затем фиксируются два внутренних бруска 350×60 мм аналогично предыдущим. Расстояние между крайним и внутренним брусом 15–20 мм. Высота табурета получается не менее 450 мм от пола.
Декорирование изделия
Окончательным этапом, который поможет сгладить шероховатости при изготовлении, является финишная отделка изделия. Это может быть как декупаж отдельных элементов табурета, так и выжигание узоров, окраска разными цветами через трафарет, наклейка филёнки.
Делая сиденье мягким, его обтягивают куском материи с любым узором и расцветкой, достаточной плотности, способное выдерживать трение. Требуемый кусок материи вырезается с запасом. Например, для стульчака размером 350х350х20 мм понадобится сложить все оборачиваемые площади. Получится одна площадь равная 0,35*0,35=0,12 м2 и четыре равные 0,35*0,05=0,02 м2. Общая площадь матери составит 0,12+(0,02*4)=0,2 м2. Число 0,05 берётся исходя из толщины сиденья 20 мм, также добавляется длина материи на заворот к внутренней поверхности с учётом толщины смягчителя.
Чертежи
Перед тем, как скачивать готовые чертежи и фото мебели из сети или рисовать их самостоятельно, стоит оценить будущие параметры стула, поскольку он прежде всего должен быть удобен в быту.

Специалисты по мастерению дома используют разные конструкции, в том числе довольно сложные. Но для новичков рекомендуют отказаться от замысловатых идей и форм, использовать только простые варианты.
Главные конструктивные элементы стула:
- ножки, в том числе задние (они же — опоры спинок)
- перемычки между ножками;
- сиденье;
- спинки.
Как правило, задние ножки имеют высоту до 1 метра и одновременно выполняют роль опор для спинки. При этом рекомендуется использовать прямой брус или с углом примерно на уровне сидения (45 сантиметров от пола). Это придает устойчивость для упора конструкции. Кроме того, спинка такого стула более удобная. При этом угол не должен быть слишком острым (нормально — 190 градусов), иначе под весом человека задние ножки начнут слишком отходить, а при опирании на спинку человек может упасть.
Оптимальное расстояние от переднего до заднего края стула, то есть между крайними положениями ножек, около 500-550 мм. Ширина стула составляет примерно 490 миллиметров. Перемычки между ножками, сиденья, а также спинка должны соответствовать этим размерам исходя из общей длины и ширины стула, а также толщины и возможного наклона ножек.





